8-800-201-23-07бесплатный звонок по России

Двухкомнатная квартира в 12м микрорайоне

В продаже 2х-комнатная квартира в 12м микрорайоне г. Анапа.
Дом кирпичный 1982 года постройки.
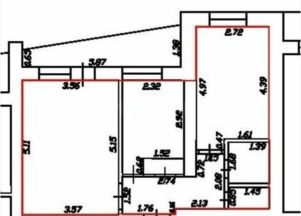
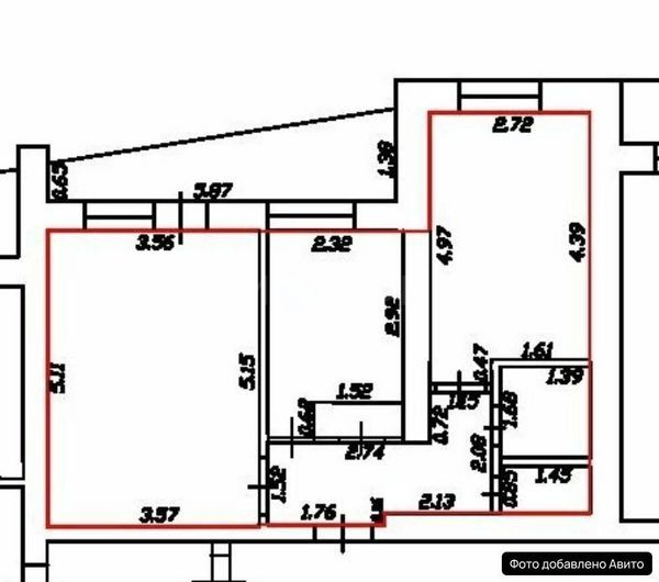
Общая площадь квартиры 52 кв м, включая балкон, без балкона - 47,2 кв м, требуется ремонт.
Отличная планировка, изолированные комнаты,paздельный с/у, бoльшaя приxoжая с гардеробной, кухня, большая лоджия.
Коммуникации все центральные, газ на плиту.
В шaгoвой дocтупнoсти школы и детcкие сады – удобно для семьи с детьми. Рядом крупный торговый центр «Красная площадь», супермаркеты «Пятёрочка», «Магнит» и другие магазины. Ближайшие рынки: Южный рынок, рынок на Промышленной — свежие продукты всегда под рукой.
Рядом остановки общественного транспорта — быстрый доступ в любую часть города.
Район считается одним из самых удобных в Анапе для жизни с детьми благодаря развитой социальной инфраструктуре и большим зеленым дворам.
Ипотека рассматривается.

  • 5 880 000 руб.
  • №объявления:19307
  • Город:Анапа
  • Район:12-й микрорайон
  • Улица:12-й микрорайон
  • Количество комнат:2
  • Этаж:7
  • Этажность:9
  • Общая площадь:52 кв.м

Наталья

8-918-321-00-66
Имя*
Телефон*
Тип недвижимости